Apartamento Novo a Estrear T3 +1 Duplex com Garagem Fechada, Cozinha totalmente equipada, Barbecue e Ar Condicionado. Prédio com elevador.
Apartamento Novo a estrear T3 +1 duplex com garagem fechada, cozinha totalmente equipada, barbecue e ar condicionado. Prédio com elevador.
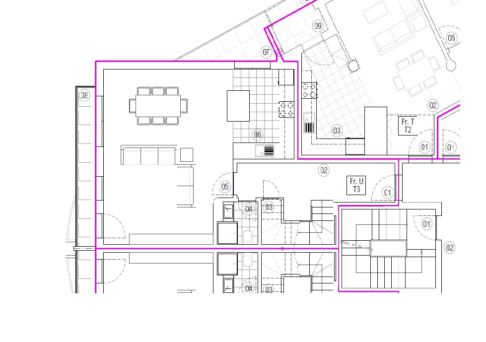
Piso 1:
- Hall;
- arrecadação;
- casa de banho com poliban;
- sala e cozinha em open space com ilha;
- varanda.
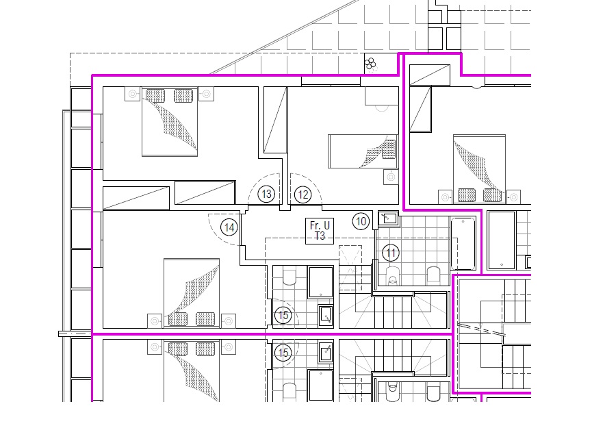
Piso 2:
- casa de banho com banheira;
- 2 quartos com roupeiro;
- 1 quarto/suite com roupeiro (wc com poliban);
- corredor;
- terraço com churrasqueira.
Sótão com janela.
Garagem fechada, preparada para carro eléctrico.
Especificidades:
- Cozinha toda equipada: irá ficar com frigorífico, máquina de lavar loiça, máquina de lavar roupa, placa, forno, exaustor e microondas;
- Painéis solares com termossifão e resistência eléctrica;
- Ar condicionado em todas as assoalhadas;
- Estores eléctricos;
- Roupeiros em todos os quartos;
- Tecto falso com luzes embutidas;
- Janelas de vidro duplo e com oscilobatente;
- Garagem fechada com tomada preparada para carro eléctrico;
- Elevador que percorre todos os pisos.
Condições do arrendamento:
- 1 mês de renda + 2 meses de caução;
- apresentação de rendimentos;
- fiador;
- dá-se preferência a pessoas sem animais.
A poucos metros de distância existe:
- Hipermercados;
- Escola Básica, Escola Secundária Raúl Proença e Colégio Rainha D. Leonor;
- Piscinas;
- Acesso autoestrada A8;
- Paragem Expresso para Lisboa;
- Paragem TOMA (autocarro citadino);
- Cafés, padaria, mercearia, talho, restaurantes, etc.
Mais informações:
Patrícia Nobre
(+351) 965030058
Piso 1:
- Hall;
- arrecadação;
- casa de banho com poliban;
- sala e cozinha em open space com ilha;
- varanda.
Piso 2:
- casa de banho com banheira;
- 2 quartos com roupeiro;
- 1 quarto/suite com roupeiro (wc com poliban);
- corredor;
- terraço com churrasqueira.
Sótão com janela.
Garagem fechada, preparada para carro eléctrico.
Especificidades:
- Cozinha toda equipada: irá ficar com frigorífico, máquina de lavar loiça, máquina de lavar roupa, placa, forno, exaustor e microondas;
- Painéis solares com termossifão e resistência eléctrica;
- Ar condicionado em todas as assoalhadas;
- Estores eléctricos;
- Roupeiros em todos os quartos;
- Tecto falso com luzes embutidas;
- Janelas de vidro duplo e com oscilobatente;
- Garagem fechada com tomada preparada para carro eléctrico;
- Elevador que percorre todos os pisos.
Condições do arrendamento:
- 1 mês de renda + 2 meses de caução;
- apresentação de rendimentos;
- fiador;
- dá-se preferência a pessoas sem animais.
A poucos metros de distância existe:
- Hipermercados;
- Escola Básica, Escola Secundária Raúl Proença e Colégio Rainha D. Leonor;
- Piscinas;
- Acesso autoestrada A8;
- Paragem Expresso para Lisboa;
- Paragem TOMA (autocarro citadino);
- Cafés, padaria, mercearia, talho, restaurantes, etc.
Mais informações:
Patrícia Nobre
(+351) 965030058
Características da Propriedade
- Maquina lavar roupa
- Maquina lavar loiça
- Frigorífico
- Microndas
- Ar condicionado
- Roupeiros
- Cozinha equipada
- Chão flutuante
- Cozinha: Placa, Forno, Frigorífico, Microondas, Lava-louças, Máquina de lavar, Exaustor, Combinado
- Proximidade: Praia, Campo golfe, Zona comercial, Restaurantes, Cidade, Campo, Hospital, Farmácia, Transportes Públicos, Escolas, Piscinas Públicas, Parque infantil
- Ano construção: 2026
- Pisos: 1
- Com estacionamento
- Sistema solar
- Elevador
- Vidros duplos
- Estores eléctricos
- Portão de garagem eléctrico
- Despensa
- Cozinha
- WCs: 2
- Casas de banho (en-suite): 1
- Nº estacionamentos: 1
- Exaustor
- Banheira de Hidromassagem
- Caixilharia com corte térmico/acústico
- Acessibilidades\proximidade: Autocarro, Aeroporto 1 hora, Zonas comerciais, Restaurantes, Pontos de interesse turístico, Ciclovia, Praia a 5m
- Porta de segurança
- Certificação energética: A
- Lugar Incluido No Preço
- Domótica: Estores Eléctricos